Rogerio Lima
Diretor de Criação
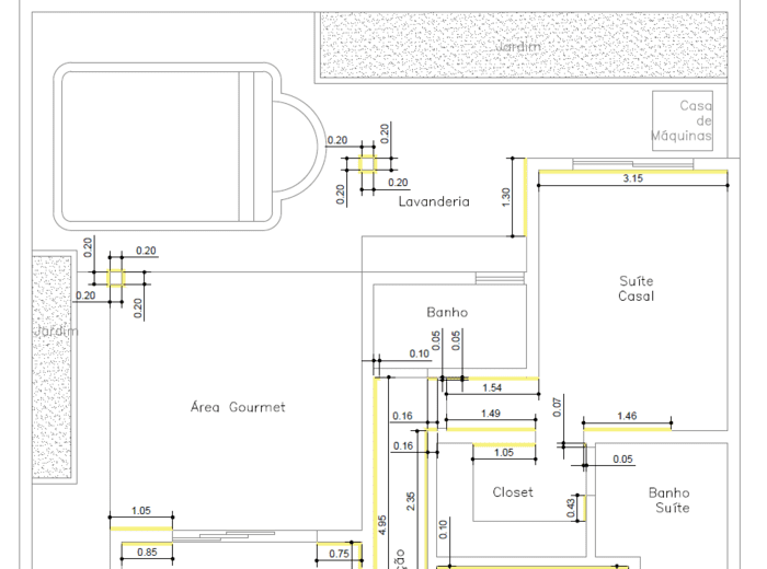
Criado pela nossa equipe, esse projeto foi desenvolvido agregando modernidade e imponência, começando pela fachada com pé direito duplo, sem deixar de lado a praticidade do dia a dia. O estilo neoclássico vai atrair atenção com sua arquitetura clean e elegante, revestida com vidro, pedra natural e cores claras. Aproveitando ao máximo o espaço dos ambientes, essa casa conta com área de convivência completamente integrada, desde a sala de estar, sala de jantar, cozinha e a área gourmet, facilitando a rotina dos moradores. Desse modo, conseguimos separar a área íntima da área social, dando mais privacidade e conforto. Complementando a área gourmet, a piscina tem em seu entorno um deck de madeira e um jardim, trazendo harmonia ao ambiente.
A equipe multidisciplinar que tirou o projeto do papel e garantiu cada detalhe funcional e estético.
Conheça as principais técnicas disponíveis no mercado e suas características.
| Itens inclusos: |
| Clique nos itens abaixo para ver um exemplo: |
Planta
Baixa ver exemplo |
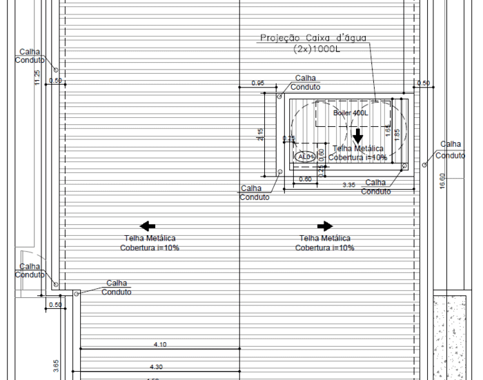
Planta
de Cobertura ver exemplo |
Planta
Baixa Humanizada ver exemplo |
Quadro-resumo
das esquadrias ver exemplo |
Projeto
em CAD (permite alterações) ver exemplo |
Elevação
da Fachada ver exemplo |
Cortes
Internos ver exemplo |
Imagens
Renderizadas da Fachada Frontal ver exemplo |
Planta
Auxiliar de Alicerce ver exemplo |
Projeto
Elétrico (opcional)
ver exemplo |
Projeto
Hidráulico (opcional)
ver exemplo |

| Projeto Personalizado: |
| Solicite um orçamento para: |
|
Nome: |
|
Celular/WhatsApp: |
|
Email: |
|
Observações: |
|
Solicitar Orçamento
|
| Área construida | 169 metros quadrados |
| Largura da casa | 8,50 metros |
| Comprimento da casa | 17,86 metros |
| Largura do terreno | 10 metros ou maior |
| Comprimento do terreno | 25 metros ou maior |
| Quartos | 3 |
| Suites | 1 |
| Banheiros | 3 |
| Garagem | 2 vagas |
| Recuo frontal | 5,20 metro(s) |
| Recuo do fundo | 3,14 metro(s) |
| Recuo lado esquerdo | 1,50 metro(s) |
| Recuo lado direito | 0 metro(s) |
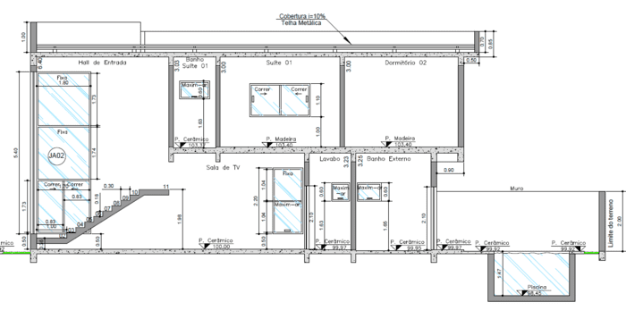
Este projeto de casa térrea com pé direito duplo combina modernidade e imponência, começando pela fachada que impressiona com sua arquitetura clean e elegante, revestida com vidro, pedra natural e cores claras. Localizada em um terreno de 10x25 metros (250 m²) e com uma área construída de 169 m², a residência possui um telhado embutido e é organizada de maneira a maximizar o espaço dos ambientes, proporcionando conforto e praticidade para o dia a dia.
Ao entrar na casa, somos recebidos por uma garagem com espaço para dois carros e um jardim frontal. A área de convivência é completamente integrada, começando pela sala de TV, que se conecta à sala de jantar e à cozinha, formando um ambiente amplo e arejado. A cozinha dá acesso direto à área gourmet externa, ideal para momentos de lazer e confraternizações. Esta área é complementada por um deck de madeira e uma piscina pequena, rodeada por um jardim que traz harmonia ao espaço.
A parte íntima da casa é bem separada da área social, garantindo privacidade aos moradores. Conta com três quartos, sendo um deles uma suíte com banheiro privativo. Os outros dois dormitórios são atendidos por um banheiro social. A suíte master, localizada na parte posterior da casa, oferece conforto e tranquilidade, com fácil acesso à lavanderia e ao lavabo, que também serve a área gourmet.
Os recuos da casa são de 5,20 metros na frente, 3,14 metros no fundo, e 1,50 metros no lado esquerdo, otimizando o uso do espaço do terreno. Este projeto é perfeito para quem busca uma casa moderna, funcional e elegante, ideal para ser construída tanto em bairros comuns quanto em locais com muro e portão, proporcionando uma vida confortável e sofisticada.
O Planta Pronta foi criado para revolucionar a maneira como as pessoas projetam suas casas. Ao escolher um projeto pronto, você pode ver como a sua casa vai ficar antes mesmo de nos contratar, sem falar no curto prazo de entrega e no preço que cabe no seu bolso. Veja em nosso vídeo outras vantagens que só a gente pode te oferecer:
Todos os nossos projetos seguem normas nacionais da ABNT para garantir a aprovação na sua prefeitura. Se ainda assim o projeto não for aprovado, solicite uma proposta para fazermos as adequações necessárias. Lembrando que você precisará de um engenheiro ou arquiteto para acompanhar a obra.
Nossos desenhos são bem detalhados para facilitar a leitura e o entendimento do mestre de obras, mas ainda assim ele poderá ter algumas duvidas. É por isso que colocamos a disposição toda a nossa equipe de engenheiros e arquitetos para ajuda-lo durante a obra.
Além dos projetos prontos, nós também oferecemos a opção de criar ou adaptar um projeto exclusivamente para você, com um excelente atendimento via email ou telefone. Clique aqui e saiba mais.
Projeto de extrema beleza e qualidade, foi aprovado na prefeitura sem ressalvas. A riqueza de detalhes nos projetos facilitou a execução, conseguimos concluir a casa em apenas 5 meses e ficou ótima. Tivemos um excelente atendimento da equipe nas poucas dúvidas que surgiram durante a execução, todos sempre prestativos e atenciosos. Parabéns, ficamos muito satisfeitos!
A equipe foi muito prestativa, gentil e eficiente. Me orientaram em muitos aspectos técnicos, burocráticos e estiveram sempre disponíveis em contatos por email e por telefone. Fiquei muito satisfeito com a aquisição e atendimento. Minha obra completa 1 ano e dois meses desde a terraplenagem e estamos na fase de pintura e colocação final dos revestimentos. Grato por tudo!
Comprei uma planta pronta e consegui executar o projeto, apesar de pequenas modificações por orientação do engenheiro estrutural. Estou satisfeita e acho que ficou linda! Por dentro caprichei no acabamento e usei material de primeira! Recomendo! Valeu a pena!
Além da cópia ser ilegal segundo a lei dos direitos autorais (Nº 9610/98), a planta apresentada no site é apenas uma ilustração e não um desenho técnico. Dessa forma você não terá acesso as partes mais importantes do projeto, que garantem uma construção segura e sem improvisos, eliminando problemas graves e gastos desnecessários.
Como nós trabalhamos via internet para todo o Brasil, temos condições de atender mais clientes diminuindo os custos operacionais, o que possibilita que nossos projetos tenham um custo médio de 0,5% do valor da obra, sem perda de qualidade, graças a uma equipe de engenheiros e arquitetos que é referência no mercado.
Toda prefeitura exige um profissional que tenha registro local para se responsabilizar pela aprovação e execução da obra. Com posse do nosso material, esse engenheiro ou arquiteto poderá alterar o projeto conforme as exigências da prefeitura ou condomínio, já que também enviamos os arquivos em dwg (CAD).
O projeto mais importante e primordial é o Projeto Arquitetônico. Com ele você executa toda a obra e faz a aprovação na prefeitura. Depois existem também outros projetos que disponibilizamos de forma opcional, como os Projetos Elétrico e Hidráulico, que garantem uma enorme economia graças a sua lista de materiais, muito útil na hora das compras, evitando desperdícios e facilitando os orçamentos.
É importante saber onde se compra na internet, por isso usamos o sistema de compras online mais seguro do Brasil, o PagSeguro do Grupo UOL, que garante a segurança dos seus dados e em caso de não recebimento ou insatisfação, ainda oferece a opção de devolução do seu dinheiro, sem burocracia ou demora.